Der Unverbesserliche B760 / B761

Wohnen, Küche, Kind I, Kind II, Schlafen, Garderobe, Bad, HAR, Diele, Flur

Details:
Walmdach 25°, Putzfassade

Netto-Grundfläche B760:
ca. 109,3 m² (nach DIN277)
Wohnfläche B760:
ca. 109,7 m² (nach WoFlV)


Ausstattung
Ausstattungsvariante

zurück zur Hausübersicht     Preisinfo anfordern
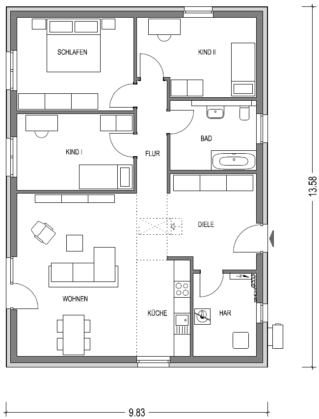
Grundriss B760
Erdgeschoss Wohnfläche
Wohnen 27,72 qm
Schlafen 15,16 qm
Kind I 12,43 qm
Kind II 12,41 qm
Küche 7,21 qm
Bad 8,41 qm
Diele 11,51 qm
Flur 7,52 qm
HAR 7,31 qm
Gesamt 109,68 qm

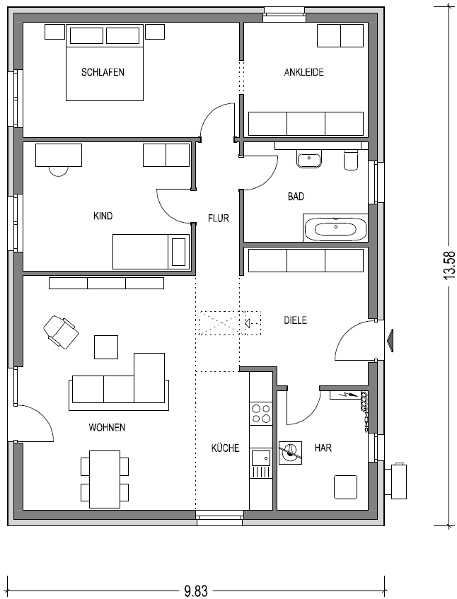
Grundriss B761
Erdgeschoss Wohnfläche
Wohnen 27,72 qm
Schlafen 16,70 qm
Ankleide 9,63 qm
Kind 14,61 qm
Küche 7,21 qm
Bad 8,41 qm
Diele 11,51 qm
Flur 6,69 qm
HAR 7,31 qm
Gesamt 109,79 qm

zurück zur Hausübersicht     Preisinfo anfordern