Bauherrenfachberatung
Menü
Kontakt
Preisinfo
Aktuelles
Impressum
Häuser
klassische Einfamilienhäuser
2-geschossige Einfamilienhäuser
Bungalows
Stadtvillen
Bauhaus
Aktionshäuser
Doppel- / 2Fam.-Häuser
Energiesparen & Haustechnik
Aktionshaus S400
Wohnen, Küche, Kind I, Kind II, Schlafen, Bad, Gäste-WC, HAR, Diele, Flur
Details:
Satteldach 45°, 105 cm Drempel
Netto-Grundfläche:
ca. 119,4 m² (nach DIN277)
Wohnfläche:
ca. 104,2 m² (nach WoFlV)
Ausstattung
Ausstattungsvariante
zurück zur Hausübersicht
Preisinfo anfordern
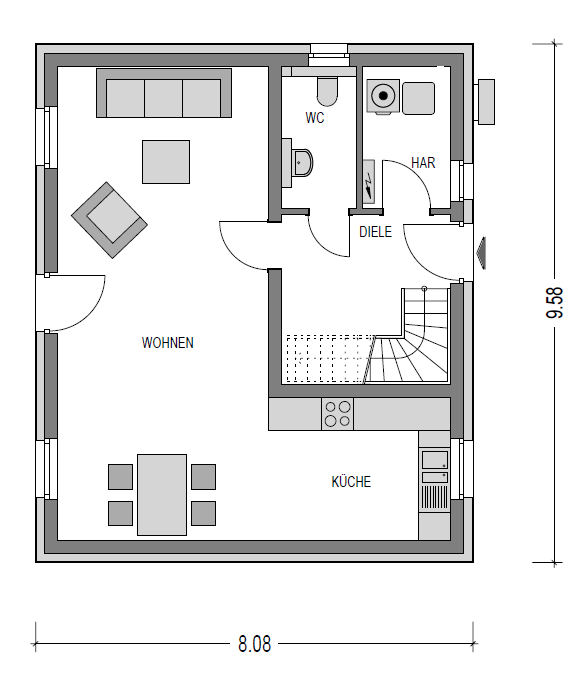
Grundriss Erdgeschoss
Erdgeschoss
Wohnfläche
Wohnen/Essen
33,88 qm
Küche
8,75 qm
Gäste-WC
3,35 qm
Diele
7,34 qm
HAR
4,18 qm
EG Gesamt
57,68 qm
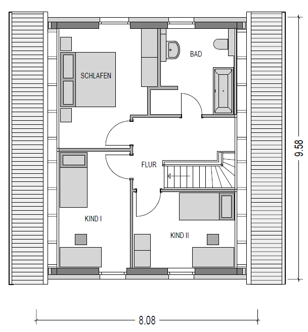
Grundriss Dachgeschoss
Dachgeschoss
Wohnfläche
Schlafen
13,07 qm
Kind I
9,85 qm
Kind II
9,54 qm
Bad
7,54 qm
Flur
6,58 qm
DG Gesamt
46,49 qm
zurück zur Hausübersicht
Preisinfo anfordern