Bauherrenfachberatung
Menü
Kontakt
Preisinfo
Aktuelles
Impressum
Häuser
klassische Einfamilienhäuser
2-geschossige Einfamilienhäuser
Bungalows
Stadtvillen
Bauhaus
Aktionshäuser
Doppel- / 2Fam.-Häuser
Energiesparen & Haustechnik
Aktionshaus S620
Wohnen, Küche, Kind I, Kind II, Schlafen, Bad, Gäste-WC, HAR, Diele, Flur
Details:
Satteldach 45°, 90 cm Drempel
Netto-Grundfläche:
ca. 156,1 m² (nach DIN277)
Wohnfläche:
ca. 137,4 m² (nach WoFlV)
Ausstattung
Ausstattungsvariante
zurück zur Hausübersicht
Preisinfo anfordern
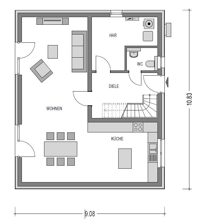
Grundriss Erdgeschoss
Erdgeschoss
Wohnfläche
Wohnen/Essen
40,45 qm
Küche
15,27 qm
Gäste-WC
2,51 qm
Diele
8,62 qm
HAR
9,86 qm
EG Gesamt
76,71 qm
Grundriss Dachgeschoss
Dachgeschoss
Wohnfläche
Schlafen
13,78 qm
Kind I
14,27 qm
Kind II
15,46 qm
Bad
9,35 qm
Flur
7,84 qm
DG Gesamt
60,70 qm
zurück zur Hausübersicht
Preisinfo anfordern