Alto 610


Wohnen, Küche, Kind I, Kind II, Schlafen, Gast, Bad, Gäste-WC, HAR, Diele, Flur

Details:
Satteldach 45°, 90 cm Drempel

Netto-Grundfläche:
ca. 145,5 m² (nach DIN277)
Wohnfläche:
ca. 128,1 m² (nach WoFlV)


Ausstattung
Ausstattungsvariante

zurück zur Hausübersicht     Preisinfo anfordern
Grundriss Erdgeschoss
Erdgeschoss Wohnfläche
Wohnen/Essen 23,68 qm
Küche 12,80 qm
Gast 10,18 qm
WC 3,75 qm
Diele 12,45 qm
HAR 8,36 qm
EG Gesamt 71,22 qm

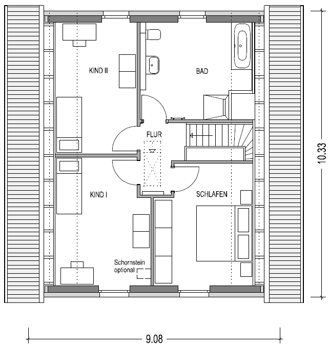
Grundriss Dachgeschoss
Dachgeschoss Wohnfläche
Schlafen 13,77 qm
Kind I 14,10 qm
Kind II 12,81 qm
Bad 12,48 qm
Flur 3,68 qm
DG Gesamt 56,84 qm

zurück zur Hausübersicht     Preisinfo anfordern