Alto 630


Wohnen, Küche, Kind I, Kind II, Schlafen, Gast, Bad, Gäste-WC, HAR, Diele, Flur

Details:
Satteldach 45°, 90 cm Drempel

Netto-Grundfläche:
ca. 161,8 m² (nach DIN277)
Wohnfläche:
ca. 143,3 m² (nach WoFlV)


Ausstattung
Ausstattungsvariante

zurück zur Hausübersicht     Preisinfo anfordern
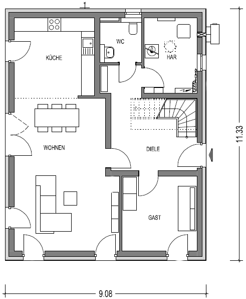
Grundriss Erdgeschoss
Erdgeschoss Wohnfläche
Wohnen/Essen 31,12 qm
Küche 13,08 qm
Gast 11,42 qm
WC 3,50 qm
Diele 12,96 qm
HAR 7,90 qm
EG Gesamt 79,98 qm

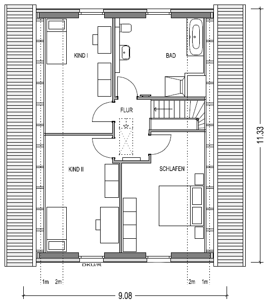
Grundriss Dachgeschoss
Dachgeschoss Wohnfläche
Schlafen 16,86 qm
Kind I 14,10qm
Kind II 15,70 qm
Bad 12,35 qm
Flur 4,33 qm
DG Gesamt 63,34 qm

zurück zur Hausübersicht     Preisinfo anfordern