Arcus 153

Offener Wohn-/Essbereich, Küche, Kind I, Kind II, Schlafen, Gast, Bad, Gäste-WC, HAR, Diele, Flur, Balkon

Details:
Zeltdach 25°, 2 raumhohe Geschosse

Netto-Grundfläche:
ca. 161,3 m² (nach DIN277)
Wohnfläche:
ca. 155,1 m² (nach WoFlV)


Ausstattung
Ausstattungsvariante

zurück zur Hausübersicht     Preisinfo anfordern
Grundriss Erdgeschoss
Erdgeschoss Wohnfläche
Wohnen 27,09 qm
Küche 14,69 qm
Gast 9,35 qm
Gäste-WC 5,80 qm
Diele 5,25 qm
Flur I 9,76 qm
HAR 7,31 qm
EG Gesamt 79,25 qm

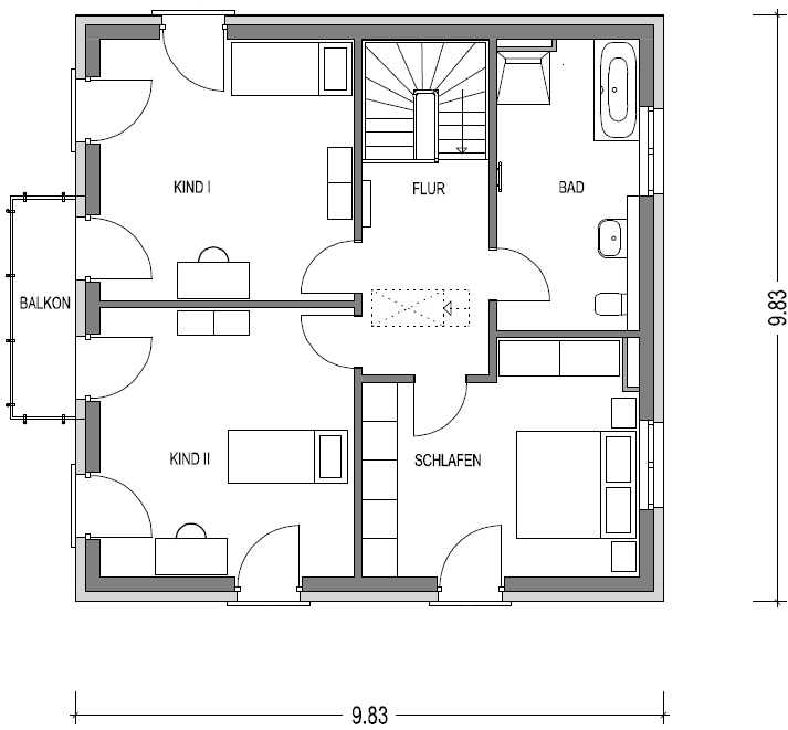
Grundriss Obergeschoss
Obergeschoss Wohnfläche
Schlafen 16,60 qm
Kind I 18,99 qm
Kind II 19,51 qm
Bad 11,25 qm
Flur II 7,57 qm
Balkon 1,90 qm
DG Gesamt 75,82 qm

zurück zur Hausübersicht     Preisinfo anfordern