Calvus 260


Wohnen, Küche, Kind I, Kind II, Kind III, Schlafen, Gast, Ankleide, Bad, Gäste-WC, HAR, Diele, Flur

Details:
Satteldach 25°

Netto-Grundfläche:
ca. 149,1 m² (nach DIN277)
Wohnfläche:
ca. 145,9 m² (nach WoFlV)


Ausstattung
Ausstattungsvariante

zurück zur Hausübersicht     Preisinfo anfordern
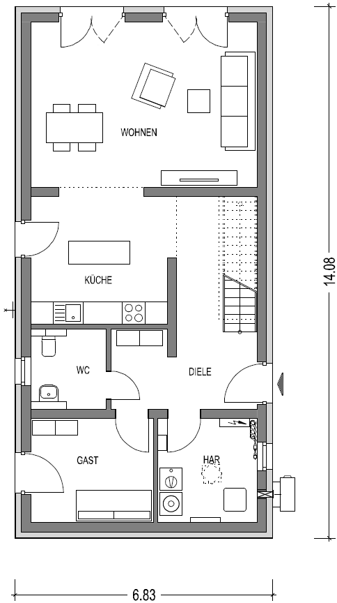
Grundriss Erdgeschoss
Erdgeschoss Wohnfläche
Wohnen/Essen 26,67 qm
Küche 13,24 qm
Gast 9,01 qm
WC 4,17 qm
Diele 13,25 qm
HAR 7,11 qm
EG Gesamt 73,45 qm

Grundriss Obergeschoss
Obergeschoss Wohnfläche
Schlafen 11,30 qm
Ankleide 5,74 qm
Kind I 10,19 qm
Kind II 14,30 qm
Kind III 9,88 qm
Bad 9,44 qm
Flur 11,64 qm
OG Gesamt 72,49 qm

zurück zur Hausübersicht     Preisinfo anfordern