Calvus 340


Wohnen, Küche, Kind I, Kind II, Schlafen, Gast, Ankleide, Bad, Gäste-WC, HAR, Diele, Flur

Details:
Satteldach 30°, 175 cm Drempel

Netto-Grundfläche:
ca. 154,9 m² (nach DIN277)
Wohnfläche:
ca. 142,6 m² (nach WoFlV)


Ausstattung
Ausstattungsvariante

zurück zur Hausübersicht     Preisinfo anfordern
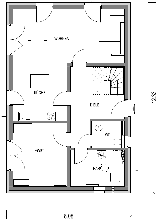
Grundriss Erdgeschoss
Erdgeschoss Wohnfläche
Wohnen/Essen 25,93 qm
Küche 13,17 qm
Gast 14,62 qm
WC 3,46 qm
Diele 11,64 qm
HAR 8,20 qm
EG Gesamt 77,02 qm

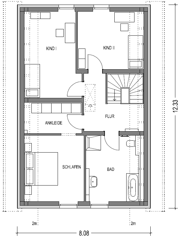
Grundriss Dachgeschoss
Dachgeschoss Wohnfläche
Schlafen 12,88 qm
Ankleide 5,69 qm
Kind I 14,79 qm
Kind II 12,57 qm
Bad 11,78 qm
Flur 7,84 qm
DG Gesamt 65,55 qm

zurück zur Hausübersicht     Preisinfo anfordern