Calvus 630


Wohnen, Küche, Kind I, Kind II, Schlafen, Gast, Bad, Gäste-WC, HAR, Diele, Flur

Details:
Satteldach 25°
Drempel 200 cm

Netto-Grundfläche:
ca. 158,8 m² (nach DIN277)
Wohnfläche:
ca. 151,2 m² (nach WoFlV)


Ausstattung
Ausstattungsvariante

zurück zur Hausübersicht     Preisinfo anfordern
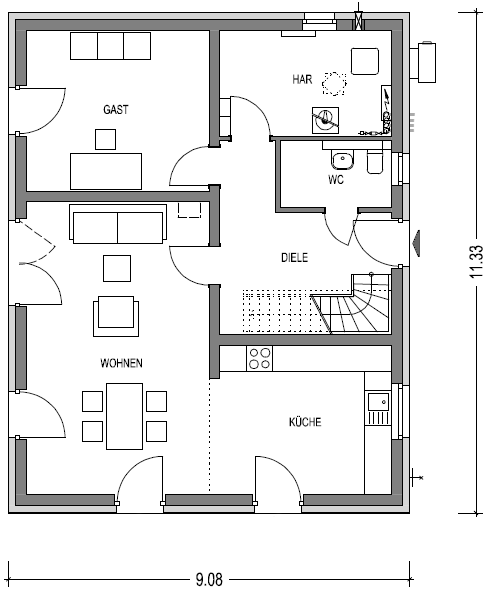
Grundriss Erdgeschoss
Erdgeschoss Wohnfläche
Wohnen 27,87 qm
Küche 13,79 qm
Gast 14,99 qm
WC 3,67 qm
Diele 10,25 qm
HAR 9,08 qm
EG Gesamt 79,65 qm

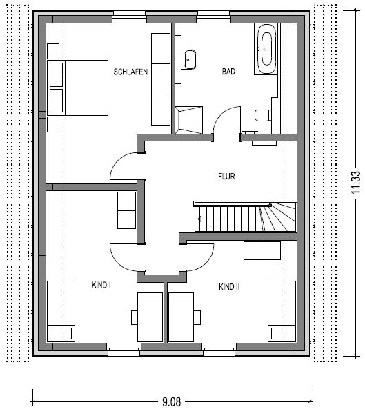
Grundriss Obergeschoss
Obergeschoss Wohnfläche
Schlafen 18,55 qm
Kind I 15,54 qm
Kind II 12,70 qm
Bad 12,23 qm
Flur 12,55 qm
OG Gesamt 71,57 qm

zurück zur Hausübersicht     Preisinfo anfordern