Calvus 631


Wohnen, Küche, Kind I, Kind II, Schlafen, Ankleide, Bad, Gäste-WC, HAR, Diele, Flur

Details:
Satteldach 25°

Netto-Grundfläche:
ca. 163,4 m² (nach DIN277)
Wohnfläche:
ca. 159,6 m² (nach WoFlV)


Ausstattung
Ausstattungsvariante

zurück zur Hausübersicht     Preisinfo anfordern
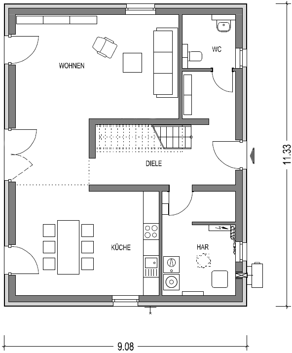
Grundriss Erdgeschoss
Erdgeschoss Wohnfläche
Wohnen 30,94 qm
Küche 21,53 qm
WC 3,92 qm
Diele 13,53 qm
HAR 10,29 qm
EG Gesamt 80,22 qm

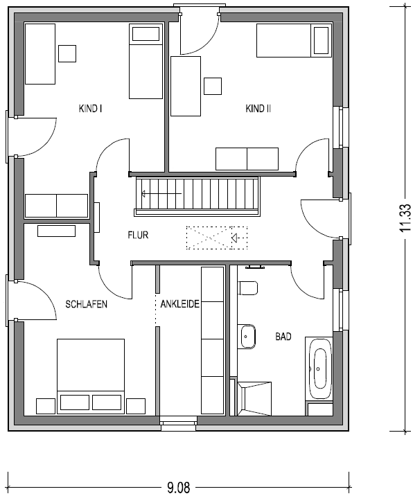
Grundriss Obergeschoss
Obergeschoss Wohnfläche
Schlafen 16,10 qm
Ankleide 7,03 qm
Kind I 17,20 qm
Kind II 17,52 qm
Bad 10,39 qm
Flur 11,12 qm
OG Gesamt 79,36 qm

zurück zur Hausübersicht     Preisinfo anfordern