Calvus 633


Wohnen, Küche, Vorrat, Kind I, Kind II, Schlafen, Ankleide, Gast, Bad, Gäste-WC, HAR, Abstellraum, Diele, Flur

Details:
Satteldach 25°

Netto-Grundfläche:
ca. 162,1 m² (nach DIN277)
Wohnfläche:
ca. 159,8 m² (nach WoFlV)


Ausstattung
Ausstattungsvariante

zurück zur Hausübersicht     Preisinfo anfordern
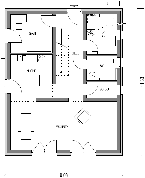
Grundriss Erdgeschoss
Erdgeschoss Wohnfläche
Wohnen 31,42 qm
Küche 11,55 qm
Vorrat 2,90 qm
Gast 9,81 qm
WC 4,20 qm
Diele 12,15 qm
HAR 7,31 qm
EG Gesamt 79,34 qm

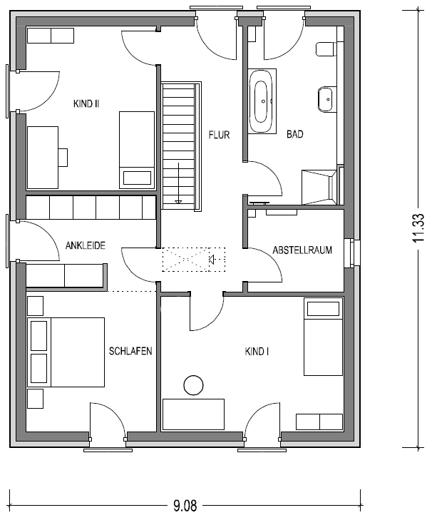
Grundriss Obergeschoss
Obergeschoss Wohnfläche
Schlafen 12,31 qm
Ankleide 8,25 qm
Kind I 16,63 qm
Kind II 14,38 qm
Bad 11,27 qm
Flur 11,37 qm
Abstellraum 5,22 qm
OG Gesamt 79,43 qm

zurück zur Hausübersicht     Preisinfo anfordern