Cumulus 770 / 772 / 774

4 Zimmer, Küche, Bad, Gäste-WC, Diele, HAR

Details:
Winkelbungalow, Walmdach 25°, überdachte Terrasse

Netto-Grundfläche Cumulus 770:
ca. 148,8 m² (nach DIN277)
Wohnfläche:
ca. 145,6 m² (nach WoFlV)


Ausstattung
Ausstattungsvariante

zurück zur Hausübersicht     Preisinfo anfordern
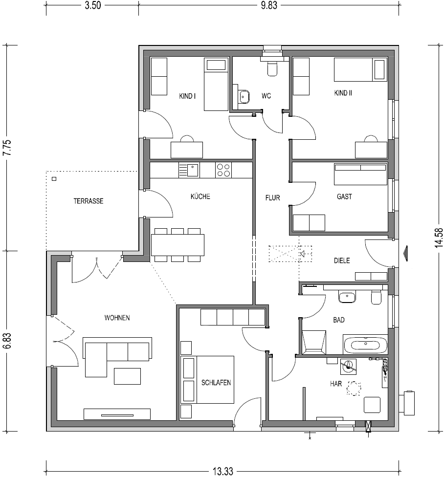
Grundriss Cumulus 770
Erdgeschoss Wohnfläche
Wohnen 49,99 qm
Schlafen 18,39 qm
Kind I 12,11 qm
Kind II 12,11 qm
Küche 15,09 qm
Bad 9,58 qm
WC 5,19 qm
Diele 7,67 qm
HAR 10,95 qm
Terrasse 4,54 qm
Gesamt 145,62 qm

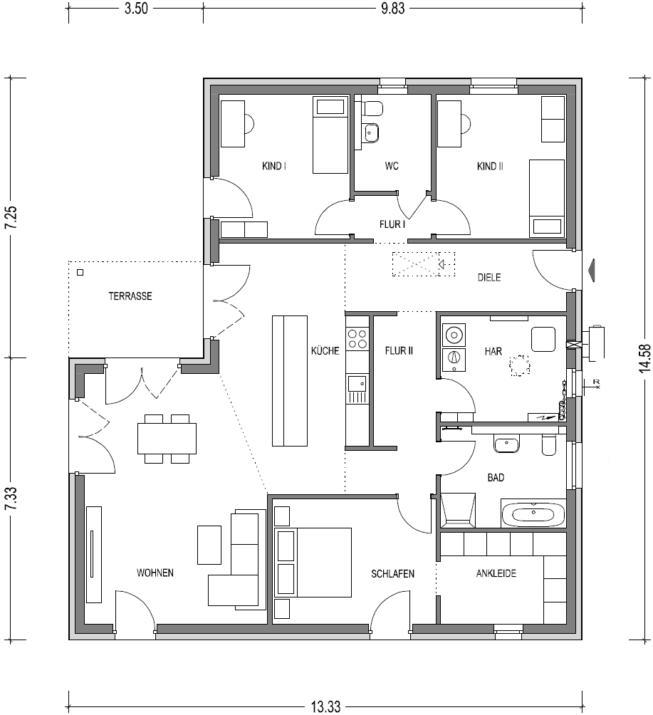
Grundriss Cumulus 772
Erdgeschoss Wohnfläche
Wohnen 29,60 qm
Schlafen 13,85 qm
Ankleide 7,61 qm
Kind I 12,70 qm
Kind II 12,51 qm
Küche 21,50 qm
Bad 8,41 qm
WC 4,91 qm
Diele 9,94 qm
Flur I 2,19 qm
Flur II 8,26 qm
HAR 8,82 qm
Terrasse 4,70 qm
Gesamt 145,00 qm

Grundriss Cumulus 774
Erdgeschoss Wohnfläche
Wohnen 26,68 qm
Schlafen 13,85 qm
Kind I 13,19 qm
Kind II 13,90 qm
Gast 9,39 qm
Küche 20,05 qm
Bad 8,41 qm
WC 4,71 qm
Diele 5,81 qm
Flur 11,97 qm
HAR 10,43 qm
Terrasse 5,50 qm
Gesamt 143,35 qm