Stratus 631

Wohnen, Küche, Kind I, Kind II, Schlafen, Ankleide, Bad, Gäste-WC, HAR, Diele, Flur

Details:
Flachdach, 2 raumhohe Geschosse

Netto-Grundfläche:
ca. 161,3 m² (nach DIN277)
Wohnfläche:
ca. 157,5 m² (nach WoFlV)


Ausstattung
Ausstattungsvariante

zurück zur Hausübersicht     Preisinfo anfordern
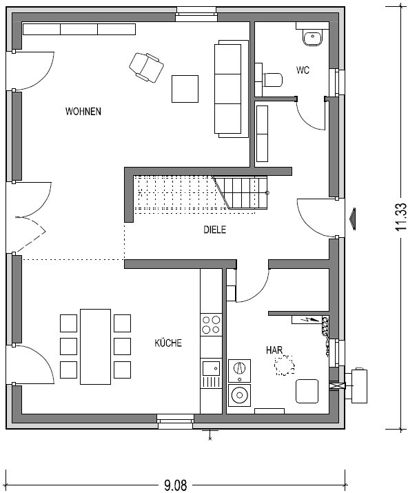
Grundriss Erdgeschoss
Erdgeschoss Wohnfläche
Wohnen 30,94 qm
Küche 21,53 qm
WC 3,92 qm
Diele 13,54 qm
HAR 10,29 qm
EG Gesamt 80,22 qm

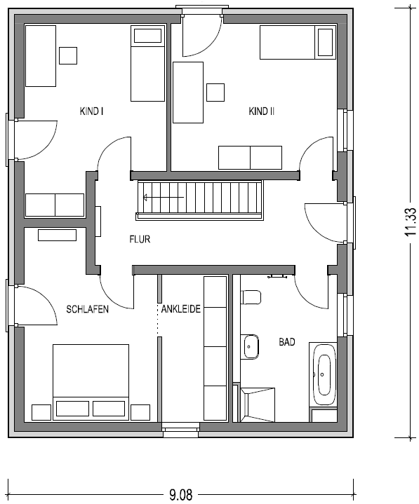
Grundriss Obergeschoss
Obergeschoss Wohnfläche
Schlafen 15,73 qm
Ankleide 6,82 qm
Kind I 16,57 qm
Kind II 16,98 qm
Bad 10,05 qm
Flur 11,12 qm
DG Gesamt 77,27 qm

zurück zur Hausübersicht     Preisinfo anfordern